来源:汇帮科技 修改日期:2025-12-18 17:00
在日常工作中,无论是设计师、工程师还是项目管理者,都免不了要和CAD图纸打交道。但你是否遇到过这样的烦恼:发给同事的图纸对方打不开,或者在不同电脑上显示效果千差万别?又或者,一份复杂的图纸文件太大,邮件根本发不出去?其实,这些问题都有一个共同的“救星”——将CAD转换为PDF格式。PDF就像是一个通用的“数字纸张”,它能完美保留图纸的原貌,无论在哪里打开都一个样,而且文件小巧,分享起来特别方便。今天,我们就来聊聊几种把CAD变成PDF的实用方法,从在线工具到电脑软件,总有一款适合你的工作流。

对于转换需求不频繁,或者电脑不想安装新软件的朋友来说,在线转换网站是个即开即用的好选择。这类平台通常操作直观,无需注册也能使用,特别适合处理单个文件。
步骤一:在浏览器中访问一个你信赖的在线文件格式转换服务平台。
步骤二:在网站页面上找到并点击“选择文件”或“上传”按钮,从你的电脑中选中需要转换的DWG或DXF格式的CAD图纸。

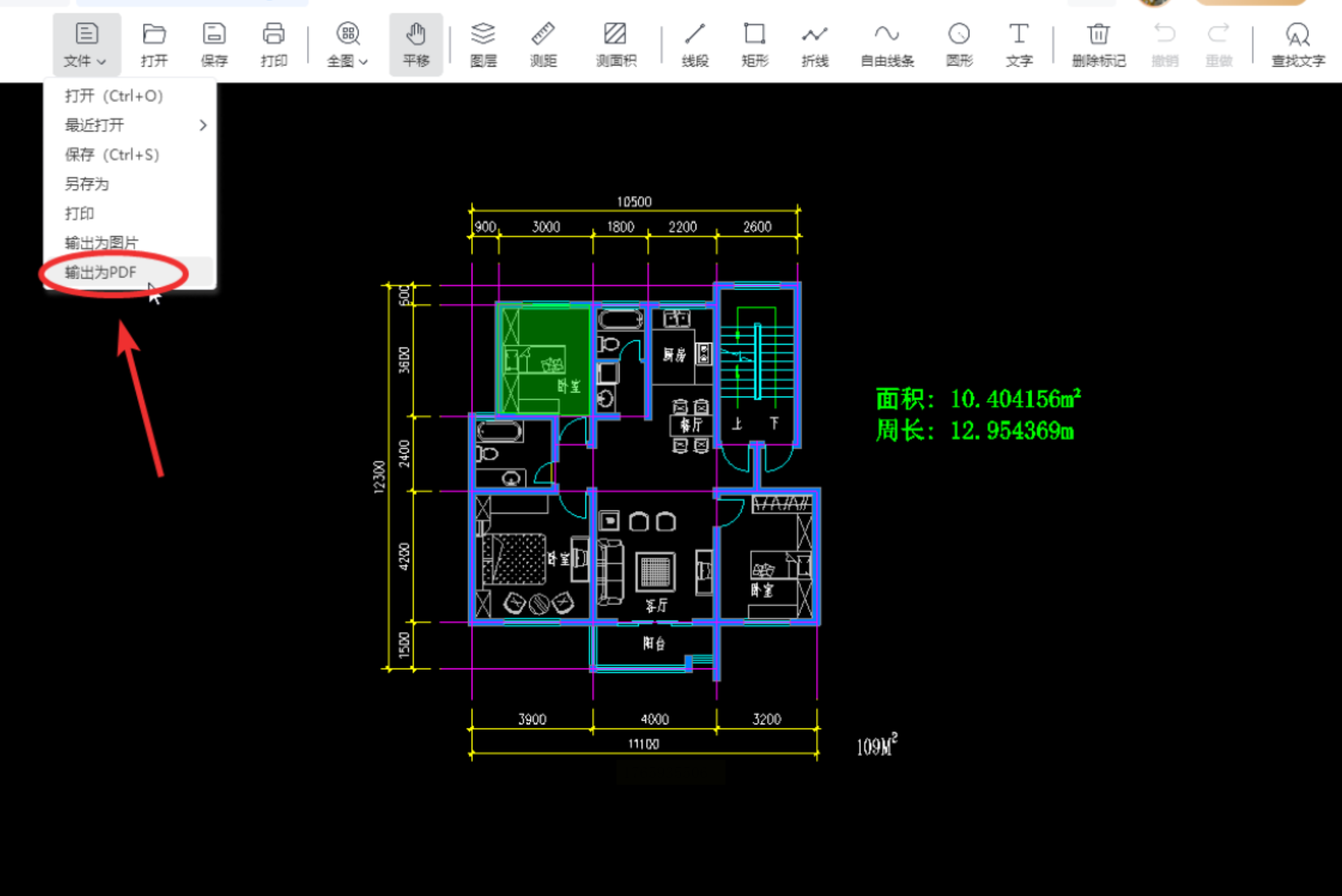
步骤三:在输出格式的选择列表中,将目标格式设置为“PDF”。通常你还可以进行一些简单设置,比如输出图片质量或页面方向。
步骤四:确认设置无误后,点击“开始转换”或类似的按钮。稍等片刻,处理进度条完成后,页面会提供下载链接。
步骤五:点击下载链接,将生成的PDF文件保存到你的电脑本地即可。

这种方式最大的优点就是方便,不受设备限制。但需要注意的是,上传涉及敏感或保密图纸时,需谨慎选择平台,并留意其隐私政策。此外,处理超大或大量文件时,在线工具可能速度较慢或有文件大小限制。
软件名称:汇帮CAD转换器
下载地址:https://www.huibang168.com/download/L2Wb1FGBo3w8
如果你经常需要转换图纸,或者需要一次性处理大批量文件,那么一款功能专一的桌面软件会是更高效、更稳定的选择。这类软件通常功能更强,设置选项也更细致。
步骤一:在电脑上安装并启动专业的CAD格式转换工具。进入软件主界面后,在功能导航区清晰找到“CAD转PDF”的选项并点击。

步骤二:通过点击“添加文件”按钮,或将需要转换的CAD文件直接拖拽到软件窗口指定区域,来导入你的图纸。这款软件支持一次性添加多个文件进行批量操作。

步骤三:对所有文件进行统一输出设置。在“页面大小”下拉菜单中,你可以根据最终用途选择A4、A3等标准尺寸,或自定义尺寸。

步骤四:在“输出色彩”选项中,根据图纸用途决定是保留“彩色”还是转换为“黑白”。黑白模式通常用于强调线条的正式图纸或节省打印耗材。

步骤五:调整“输出质量”滑块或选择预设选项。更高的质量意味着PDF中的图像更清晰,但文件体积也会相应增大,请根据实际需要在清晰度和文件大小间取得平衡。

步骤六:点击“浏览”按钮,为转换好的PDF文件指定一个便于查找的存储文件夹。如果不想每次设置,也可以使用软件默认的路径。

步骤七:完成所有设置后,点击界面上的“开始转换”或“批量转换”按钮。软件会显示进度条,让你清晰了解当前处理状态。

步骤八:转换结束后,直接点击“打开输出文件夹”就能快速找到生成的文件。建议打开PDF核对一下内容是否完整、标注是否清晰,确保转换成功。

使用本地软件的优势在于处理速度快,隐私有保障,且不受网络环境影响。丰富的预设选项能让你更精准地控制输出效果,满足专业出图的要求。
除了专一功能的软件,还有一些工具集成了多种文档处理能力,CAD转PDF只是其功能之一。这类工具适合那些希望一个软件解决多种办公问题的用户。
步骤一:启动这款多功能转换工具,在主界面的众多功能图标中,准确找到并点击“CAD转PDF”模块。

步骤二:通过“添加文件”或“添加文件夹”功能,导入你需要转换的CAD图纸。它同样支持各版本CAD文件和批量操作,能显著提升工作效率。
步骤三:在转换前,你可以对输出属性进行个性化定制。例如,自由选择输出为彩色或黑白;在丰富的“页面大小”库中挑选合适的尺寸;还能设置背景颜色和输出质量等级,灵活性很高。

步骤四:所有文件添加并设置好后,点击醒目的“全部转换”按钮。软件便会开始工作,并在每个文件后显示“转换成功”的状态提示。
步骤五:转换完成后,你可以直接点击“预览”快速查看PDF效果,也可以“打开”所在文件夹进行文件管理。这类工具通常能很好地保持原图纸的矢量信息和清晰度。

选择这类集成工具,相当于置备了一个文档处理小工具箱,一软多用可以节省电脑空间。但在选择时,建议关注其在核心功能(如CAD转换)上的表现是否足够专业和稳定。
很多时候,我们只是想快速查看一张CAD图纸并把它分享出去。如果你已经安装了一款轻量级的CAD看图软件,那么它很可能就自带输出PDF的功能,这样连专门的转换工具都省了。
步骤一:在电脑上打开你常用的CAD看图应用程序,点击菜单栏或工具栏中的“打开”命令,载入你想要转换的图纸文件。
步骤二:成功打开图纸后,在软件左上角的“文件”菜单里,寻找“打印”、“导出”或“输出为”等相关选项。

步骤三:在弹出的输出设置窗口中,将“打印机”或“输出格式”选择为“Adobe PDF”或“Microsoft Print to PDF”(这是Windows系统自带的虚拟打印机,可将任何文档打印为PDF)。
步骤四:点击“属性”或“更多设置”,可以对PDF的页面尺寸、方向和质量进行最后调整,确保符合你的预期。
步骤五:最后,点击“保存”或“打印”按钮,为生成的PDF文件命名并选择保存位置,操作就完成了。

这个方法最为直接,尤其适合在查看图纸的同时顺手完成转换。它的设置选项可能不如专业转换软件丰富,但对于保证图纸基本布局和内容的准确输出,已经完全足够。
好了,以上就是为大家整理的几种将CAD图纸转换为PDF格式的实用路径。从即用即走的在线工具,到功能强大的专业软件,再到看图软件的内置功能,每种方法都有其适用的场景。关键不在于寻找“最好”的工具,而在于找到“最适合”你当前需求的那一个。下次再遇到图纸分享的难题时,不妨试试这些方法,让清晰、通用的PDF文件成为你高效协作的得力助手。希望这篇指南能真正帮你扫清工作中的小障碍,让创意和设计流畅地传递。
如果想要深入了解我们的产品,请到 汇帮科技官网 中了解更多产品信息!
没有找到您需要的答案?
不着急,我们有专业的在线客服为您解答!
请扫描客服二维码